Konstruktion eines Trapezes von dem die Seiten a, b und c sowie der Winkel Beta bekannt sind

Anleitung um ein Trapez zu konstruieren, von dem die Seitenlängen a, b und c sowie der Winkel Beta bekannt sind.

Trapez - Konstruktion

Auf dieser Seite möchten wir eine Schritt-für-Schritt-Anleitung geben, wie man ein Trapez konstruiert, von dem die Seitenlängen a, b und c sowie der Winkel Beta gegeben sind.

Beispiel:

geg.: (allgemeines) Trapez:

\begin{align} & a = 10\ cm \\ & b = 4,5\ cm \\ & c = 5\ cm  \\ & \beta = 70^\circ

ges.: Konstruktion

Schritt 1:

Skizze

Zeichnen Sie zuerst eine Skizze des Trapezes und beschriften Sie dieses vollständig (Seiten, Eckpunkte, Winkel).

Die gegebenen Bestimmungsstücke werden nun färbig markiert, um nachher die Konstruktion einfacher durchführen zu können.

Schritt 2:

Konstruktion der Seite a

Beginnen Sie mit der Konstruktion der Seite a = 10 cm, welche die Eckpunkte A und B des Trapezes miteinander verbindet.

Beschriften Sie die gezeichnete Seite (a) sowie die beiden Eckpunkte (A und B).

Schritt 3:

Konstruktion des Winkels Beta

In der Skizze kann man erkennen, dass die soeben gezeichnete Seitenlänge a zwei Winkel einschließt: Winkel Alpha im Eckpunkt A sowie Winkel Beta im Eckpunkt B.

Wir konstruieren daher nun den Winkel Beta= 70° im Eckpunkt B und beschriften diesen sogleich.

Schritt 4:

Konstruktion der Seite b

Ein Blick auf die Skizze verrät, dass die Seite b des Trapezes vom Eckpunkt B ausgeht und auf dem vorhin durch den Winkel Beta konstruierten Strahl liegt.

Man nimmt somit die Länge der Seite b = 4,5 cm in den Zirkel, sticht im Eckpunkt B ein und schlägt diese Länge auf dem Strahl ab. Dadurch entsteht der Eckpunkt C unseres Trapezes.

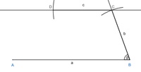
Schritt 5:

Konstruktion der Seite c - Teil 1

In der Skizze kann man erkennen, dass die Seite c die beiden Eckpunkte C und D miteinander verbindet und parallel zur am Beginn konstruierten Seite a liegt.

Daher konstruieren wir nun eine (Hilfs-)Parallele, die durch den Eckpunkt C verläuft und zur Seite a parallel liegt.

Schritt 6:

Konstruktion der Seite c - Teil 2

Auf der (Hilfs-)Parallelen liegt nun die Seite c.

Daher nehmen wir die Länge der Seite c = 5 cm in den Zirkel, stechen im Eckpunkt C ein und schlagen nach links auf der Parallelen ab. Der nun entstandene Schnittpunkt ist der Eckpunkt D des Trapezes.

Schritt 7:

Vervollständigen des Trapezes

Abschließend verbindet man nun noch den Eckpunkt D mit dem Eckpunkt A.

Die dadurch entstandene Seite ist die Seite d des Trapezes.

Schritt 8:

Beschriftung:

Beschriften Sie zuletzt alle Eckpunkte, Seiten und Winkel des Trapezes.

Ziehen Sie die Seiten mit einem weichen Bleistift oder einem Buntstift nach, um das Trapez klar von den Hilfslinien abzuheben.

Kommentar verfassen